20% off

Details:

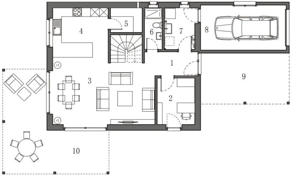
First Floor: 147.10 m²

1.Hall 5.60 m²

2.Office/ Room 8.20 m²

3.Living Room/Dining room 34.30 m²

4.Kitchen 12.80 m²

5.Food Storage 3.70 m²

6.Bathroom 3.40 m²

7.Service Room 5.90 m²

8.Garage 18.00 m²

9.Parking Shelter 21.00 m²

10.Terrace 34.20 m²

Second Floor: 69.10 m²

1.Hall 7.80 m²

2.Room 1  11.40 m²

3.Playground 8.40 m²

4.Room 2 12.50 m²

5.Room 3 15.60 m²

6.Wardrobe 4.50 m²

7.Bathroom 8.90  m²